For more information regarding the value of a property, please contact us for a free consultation.
845 Lacy LOT 2 RD Canton, GA 30115
Want to know what your home might be worth? Contact us for a FREE valuation!

Our team is ready to help you sell your home for the highest possible price ASAP
Key Details
Sold Price $197,925
Property Type Single Family Home
Sub Type Single Family Residence
Listing Status Sold
Purchase Type For Sale
Square Footage 2,409 sqft
Price per Sqft $82
Subdivision Lot 2
MLS Listing ID 6994120
Sold Date 08/17/22
Style Ranch
Bedrooms 4
Full Baths 3
Construction Status To Be Built
HOA Y/N No
Year Built 2022
Tax Year 2022
Lot Size 2.730 Acres
Acres 2.73
Property Sub-Type Single Family Residence
Property Description
LAST LOT AVAILABLE!!!!!!
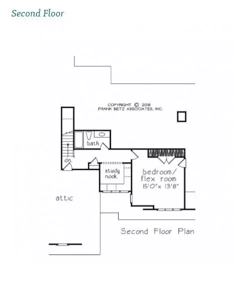
**USE OUR BUILDER OR CHOOSE YOUR OWN** For people with discerning tastes looking for an extremely private lot to build. This home is the Nesbit Ferry Plan-to be built. Inviting 1.5 story cottage with welcoming front porch. Open floor plan. Kitchen with large island. Private upstairs area. See pics for blueprint and sample home photos. Build your ultimate custom home and establish your own private estate to meet your unique needs. Extremely private subdivision with only 4 lots. Build space to park all your big-boy toys..4-wheelers, RV, boat or install a pool/spa, outdoor kitchen, garden of your dreams and more..sky is the limit! Located in sought after Creekland School District.
Location
State GA
County Cherokee
Area Lot 2
Lake Name None
Rooms
Bedroom Description Master on Main, Oversized Master, Roommate Floor Plan
Other Rooms None
Basement Bath/Stubbed, Daylight, Exterior Entry, Full, Interior Entry
Main Level Bedrooms 3
Dining Room Separate Dining Room
Kitchen Breakfast Bar, Cabinets White, Kitchen Island, Pantry, Solid Surface Counters, View to Family Room
Interior
Interior Features Entrance Foyer, High Ceilings 9 ft Main, High Speed Internet, Low Flow Plumbing Fixtures, Tray Ceiling(s), Walk-In Closet(s)
Heating Propane, Other
Cooling Central Air
Flooring Ceramic Tile, Hardwood
Fireplaces Number 1
Fireplaces Type Factory Built, Great Room
Equipment None
Window Features Insulated Windows, Shutters
Appliance Dishwasher, Electric Water Heater, Gas Oven, Microwave, Refrigerator, Self Cleaning Oven
Laundry Laundry Room, Main Level
Exterior
Exterior Feature Private Front Entry
Parking Features Attached, Garage, Garage Door Opener, Kitchen Level, Level Driveway, RV Access/Parking
Garage Spaces 2.0
Fence None
Pool None
Community Features None
Utilities Available Electricity Available
Waterfront Description Creek
View Y/N Yes
View Trees/Woods
Roof Type Shingle
Street Surface Paved
Accessibility None
Handicap Access None
Porch Covered, Front Porch, Patio, Rear Porch
Total Parking Spaces 2
Building
Lot Description Back Yard, Creek On Lot, Level, Private, Wooded
Story One and One Half
Foundation Concrete Perimeter
Sewer Septic Tank
Water Public
Architectural Style Ranch
Level or Stories One and One Half
Structure Type Cement Siding
Construction Status To Be Built
Schools
Elementary Schools Avery
Middle Schools Creekland - Cherokee
High Schools Creekview
Others
Senior Community no
Restrictions false
Acceptable Financing Cash, Conventional
Listing Terms Cash, Conventional
Special Listing Condition None
Read Less

Bought with Keller Williams Realty Partners
GET MORE INFORMATION




